419-292-1983
info@aa-engineers.com
100' W x 300' L x 20' H Manufacturing warehouse
OR
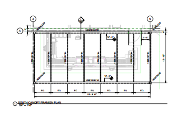
Two story steel structure and 300' long canopy
Holland, OH
Structural design repair and analysis of mezzanine, mechanical platform, garage door addition, rock climbing support wall, and various other hanging ceiling elements.
Plant redesign and expansion including press pits, 50 ton crane supports, 2 bays, and 48' high steel structures
Elizabethtown, KY