419-292-1983
info@aa-engineers.com
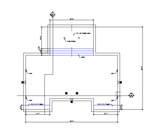
42' 4" x 38' 1,220 square foot commercial pool
Ypsilanti, MI
30' x 66' 1,980 square foot commercial pool
Dublin, OH
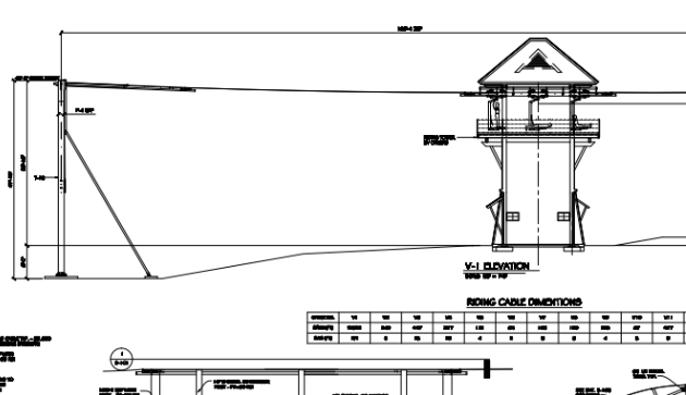
SkySurfer electric zipline
Branson, MO
New wood truss structure and platform for zipline course
House Springs, MO