Religious

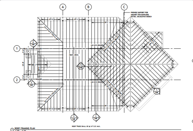
Concrete foundation plan with structural steel framing for both the lower level social hall and ground level worship space, and wood roof framing.

Frankfort, KY

Structural framing, roof framing, and new foundation system for an addition to an existing building.

Overland Park, KS

Design of a 9,500 square foot new mosque and community center. This design includes a one story prayer area, library, meeting rooms, and a basement level social hall using poured concrete walls, light gauge framing, and concrete deck on steel framing.

Elizabethtown, KY

Design of a 6,000 square foot new sanctuary addition attached to an existing building. This design includes concrete block wall and a glue-lam wood roof.

Fremont, OH

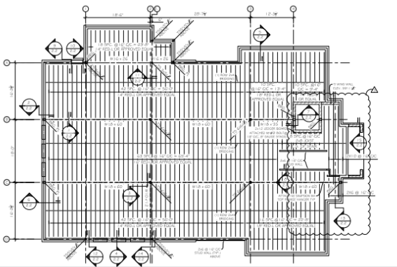
Design of a one-story prayer area with a below-ground social hall area. This design includes concrete deck on steel frames, poured concrete basement, and wood trusses and wood framing.

Louisville, KY