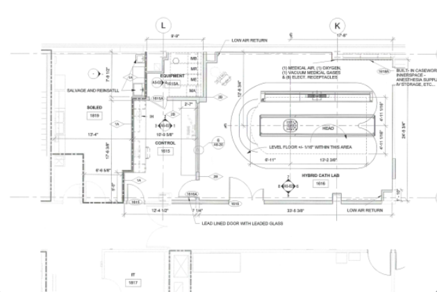
Medical & Healthcare
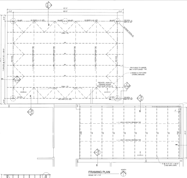
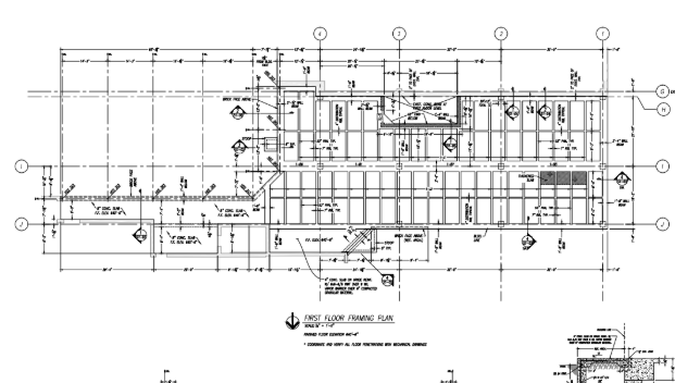
Design of a three-story, 25 foot grid steel structure, and composite floor decks on steel framing. This design includes a new 30,000 square foot medical plaza next to an existing hospital, penthouse on the roof, and new canopies.
Oregon, OH
















